パークスフィア牛込神楽坂 808
22.4万円
管理 / 共益費 15,000円
都営大江戸線「牛込柳町」駅徒歩4分
東西線「神楽坂」駅徒歩13分
都営大江戸線「牛込神楽坂」駅徒歩7分
/
【外観】
-
バストイレ別
-
室内洗濯機置場
-
独立洗面台
-
浴室乾燥機
-
オートロック
-
エレベーター
- 保証金
- -
- 敷引 / 償却
- - / -
- 敷金積み増し
- -
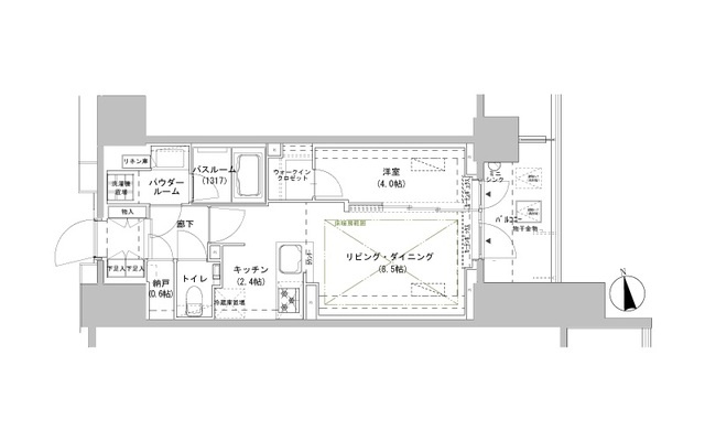
- 間取り / 詳細
- 1R
- 向き
- 東
- 専有面積
- 40.01㎡
- バルコニー
(テラス)面積 - 7.00㎡
- 所在階 / 階建て
- 8階 / 13階建
- 建物構造
- 鉄筋コンクリート
- 築年月
- 2021年7月(築4年)
- 種別
- 賃貸マンション
- 保険会社 / 料金
- 有 / -
- 保証会社 / 料金
- 必加入 / オリコフォレントインシュア
初回保証委託料(最低20,000円):月額賃料等の50%、2年目以降:10,000円/年 - 駐車場
- 無 -
- 現況
- 空家
- 入居可能時期
- 即時
- その他条件
- 室内清掃費:6万1,615円 鍵交換費:1万6,500円 口座振替事務手数料:220円(月額)
- 設備条件
-
- ペット相談 / 楽器相談 / 室内洗濯機置場 / フローリング / バルコニー / エレベーター / 電気有 / バイク置場あり / 敷地内ごみ置き場 / システムキッチン / バス・トイレ別 / 浴室乾燥機 / 独立洗面台 / エアコン / 床暖房 / ウォークインクロゼット / CS / BS / CATV / オートロック / 宅配ボックス / 24時間ゴミ出し可
- 契約期間
- 2年
- 賃貸区分
- 一般
- 更新料
- 1ヶ月
- 更新事務手数料
- -
- 総戸数
- -
- 特優賃
- -
- 取引態様
- 仲介
- 物件番号
- 97441225
- 管理コード
- -
- 情報更新日
- 2026年02月07日
- 次回更新予定日
- 2026年02月09日
- 取扱会社
-
- アップシードレジデンシャル四ツ谷店
- 東京都新宿区四谷1丁目7-2 第二鹿倉ビル2階
- TEL:03-5341-4838
- 東京都知事 (3) 第96575号
賃貸住宅管理業者(国土交通省(2)第3779号) - 公益社団法人 全日本不動産協会
物件の特徴
基本情報
設備条件
その他
近隣の物件
パークスフィア牛込神楽坂
22.4万円
15,000円
1R(40.01㎡)





