【外観】レジディア御茶ノ水Ⅱ
-
バストイレ別
-
室内洗濯機置場
-
TVモニタ付きインターホン
-
独立洗面台
-
浴室乾燥機
-
オートロック
-
エレベーター
- 保証金
- -
- 敷引 / 償却
- - / -
- 敷金積み増し
- -
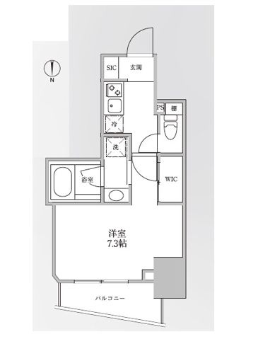
- 間取り / 詳細
- 1K
洋室 7.3帖 - 向き
- 北
- 専有面積
- 25.14㎡
- バルコニー
(テラス)面積 - -
- 所在階 / 階建て
- 10階 / 10階建
- 建物構造
- 鉄筋コンクリート
- 築年月
- 2015年3月(築11年)
- 種別
- 賃貸マンション
- 保険会社 / 料金
- 有 住宅保険 21,500円 / 2年
- 保証会社 / 料金
- 必加入 / その他
初回契約時:40%
更新時:10000円、月額:1000円 - 現況
- 空家
- 入居可能時期
- 相談
- その他条件
- 入居者会員サービス:1万1,000円 鍵交換代:3万3,000円
- 設備条件
-
- 2人入居可 / 室内洗濯機置場 / フローリング / バルコニー / 都市ガス / 公営水道 / 公共下水 / 24時間換気システム / エレベーター / 電気有 / 駐輪場 / ガスコンロ / コンロ2口以上 / システムキッチン / バス・トイレ別 / 浴室乾燥機 / 温水洗浄便座 / 洗髪洗面化粧台 / シャワー / 独立洗面台 / エアコン / ウォークインクロゼット / シューズボックス / 収納豊富 / オートロック / TVモニタ付インターホン / 宅配ボックス / 防犯カメラ
- 契約期間
- 2年
- 賃貸区分
- 一般
- 更新料
- 1ヶ月(新賃料)
- 更新事務手数料
- -
- 総戸数
- -
- 特優賃
- -
- 取引態様
- 仲介
- 物件番号
- 101395974
- 管理コード
- -
- 情報更新日
- 2026年04月20日
- 次回更新予定日
- 2026年04月27日
- 取扱会社
-
- アップシードレジデンシャル水道橋店
- 東京都文京区本郷1丁目20-4 池田ビル2階(白山通り沿い)
- TEL:03-3868-2833
- 東京都知事 (3) 第96575号
賃貸住宅管理業者(国土交通省(2)第3779号) - 公益社団法人 全日本不動産協会
- 備考
- ☆アップシードレジデンシャル水道橋店では、あなたの「住まい探し」を応援致します。文京区の物件はもちろん、他のエリアの物件につきましても、経験豊富な営業があなたの新生活を精一杯サポート致します!当社ではVISA/MASTERのクレジットカード決済も可能です。
-
コンビニエンスストア
ローソン 神田明神
135m(2分)
-
スーパー
ピーコックストア 神田妻恋坂店
150m(2分)
-
寺院・神社
神田明神
154m(2分)
-
ファミリーレストラン
COCO’S 秋葉原店
200m(3分)
-
レンタカー
ニコニコレンタカー外神田店
232m(3分)
-
ドラッグストア
ウェルシア千代田御茶ノ水店
250m(4分)
-
ファミリーレストラン
サイゼリヤ 秋葉原中央通り店
261m(4分)
-
レンタカー
ニッポンレンタカー秋葉原営業所
274m(4分)
-
クリーニング
ポニークリーニング 湯島1丁目店
275m(4分)
-
コンビニエンスストア
セブンイレブン文京神田明神下店
295m(4分)
-
コインランドリー
ポニークリーニング 妻恋坂店
296m(4分)
-
スイーツ
ミスタードーナツ秋葉原ショップ
312m(4分)
-
コンビニエンスストア
ファミリーマートお茶の水店
324m(5分)
-
スーパー
まいばすけっと 末広町駅前
375m(5分)
-
喫茶店・カフェ
ドトールコーヒーショップ 御茶ノ水北店
388m(5分)
-
郵便局
湯島四郵便局
409m(6分)
-
総合病院
東都文京病院
565m(8分)
-
大学
東京医科歯科大学
607m(8分)
-
銀行
みずほ銀行 御茶ノ水ソラシティ出張所
619m(8分)
-
スーパー
成城石井 御茶ノ水ソラシティ店
619m(8分)
物件の特徴
セールスポイント
JR中央線・総武線「御茶ノ水駅」まで徒歩8分の賃貸マンション「レジディア御茶ノ水Ⅱ」のご紹介です。★駅近、複数路線利用可能で通勤通学に便利な好立地です。★洗面所独立で朝の支度もばっちりです。★2口コンロのキッチンで過ごしやすいお部屋です。★オートロックやモニタ付きインターホンでセキュリティも安心です。★
ポイント
複数路線利用可能 バストイレ別 浴室乾燥機 温水洗浄便座 クローゼット TVモニター付きインターホン 室内洗濯機置場 エアコン フローリング
担当者のコメント
基本情報
設備条件
その他
周辺施設
近隣の物件
よく見られている物件
レジディア御茶ノ水Ⅱ
15.3万円
15,000円
1K(25.14㎡)





