【外観】
-
エレベーター
- 保証金
- -
- 敷引 / 償却
- - / -
- 敷金積み増し
- -
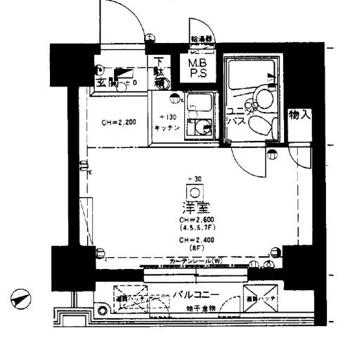
- 間取り / 詳細
- 1R
洋室 - 向き
- 東
- 専有面積
- 17.40㎡
- バルコニー
(テラス)面積 - -
- 所在階 / 階建て
- 4階 / 8階建
- 建物構造
- 鉄骨鉄筋コンクリート
- 築年月
- 1984年10月(築41年)
- 種別
- 賃貸マンション
- 保険会社 / 料金
- 有 火災保険 20,000円 / 2年
- 保証会社 / 料金
- 必加入 / エポスカード
指定保証会社加入必須
初回保証料:賃料等の50% 更新時保証料 10000円 - 現況
- 空家
- 入居可能時期
- 即時
- その他条件
- プレミアムデスク:1万6,500円 鍵交換代:2万7,500円 外国籍、留学生、海外審査相談可能
- 設備条件
-
- ペット相談 / 閑静な住宅地 / 高齢者相談 / フローリング / ベランダ / バルコニー / 都市ガス / 公営水道 / 公共下水 / エレベーター / 電気有 / 照明器具付き / 電気コンロ / コンロ1口 / シャワー / エアコン / シューズボックス / 光ファイバー / 角部屋
- 契約期間
- 2年
- 賃貸区分
- 一般
- 更新料
- 1ヶ月(新賃料)
- 更新事務手数料
- -
- 総戸数
- -
- 特優賃
- -
- 取引態様
- 仲介
- 物件番号
- 98140192
- 管理コード
- -
- 情報更新日
- 2026年01月09日
- 次回更新予定日
- 2026年01月16日
- 取扱会社
-
- アップシードレジデンシャル水道橋店
- 東京都文京区本郷1丁目20-4 池田ビル2階(白山通り沿い)
- TEL:03-3868-2833
- 東京都知事 (3) 第96575号
賃貸住宅管理業者(国土交通省(2)第3779号) - 公益社団法人 全日本不動産協会
- 備考
- ☆アップシードレジデンシャル水道橋店では、あなたの「住まい探し」を応援致します。文京区の物件はもちろん、他のエリアの物件につきましても、経験豊富な営業マンがあなたの新生活を精一杯サポート致します!当社ではVISA/MASTERのクレジットカード決済も可能です。
-
ファーストフード
なか卯 千駄木店
64m(1分)
-
スーパー
野村屋
69m(1分)
-
コンビニエンスストア
セブンイレブン文京千駄木店
85m(2分)
-
喫茶店・カフェ
サンマルクカフェ 千駄木店
146m(2分)
-
銀行
三菱UFJ銀行 千駄木支店
227m(3分)
-
銀行
みずほ銀行 根津支店
251m(4分)
-
銀行
三菱UFJ銀行 千駄木駅前ATMコーナー
279m(4分)
-
スーパー
まいばすけっと谷中よみせ通り店
312m(4分)
-
コンビニエンスストア
ローソン 千駄木店
364m(5分)
-
郵便局
文京千駄木三郵便局
413m(6分)
-
ドラッグストア
どらっぐぱぱす 根津店
494m(7分)
-
大学
日本医科大学 千駄木校舎
533m(7分)
-
郵便局
文京根津郵便局
592m(8分)
-
高校
駒込中学校・高等学校
664m(9分)
-
ファーストフード
吉野家 根津店
792m(10分)
-
弁当
キッチンオリジン 根津店
816m(11分)
-
大学
文京学院大学 本郷キャンパス
1053m(14分)
-
居酒屋
鳥貴族 白山店
1204m(16分)
-
和風料理
やよい軒 白山店
1233m(16分)
-
ファミリーレストラン
COCO’S 駒込白山店
1279m(16分)
物件の特徴
セールスポイント
東京メトロ千代田線「千駄木」駅より徒歩4分の「パレドール千駄木」のご紹介です。★駅近で通勤通学に便利です。★上京など一人暮らしの方におススメです。★角部屋のため周囲の環境に左右されづらく快適です。★光回線も通っているためネット環境も完備です。★猫が飼育可能なお部屋です。★
ポイント
担当者のコメント
基本情報
設備条件
その他
周辺施設
近隣の物件
パレドール千駄木
6.5万円
7,000円
1R(17.40㎡)






杉本 悠哉