【外観】ロイヤルグリーン本郷
-
バストイレ別
-
室内洗濯機置場
-
TVモニタ付きインターホン
-
カウンターキッチン
-
独立洗面台
-
オートロック
-
エレベーター
- 保証金
- -
- 敷引 / 償却
- - / -
- 敷金積み増し
- -
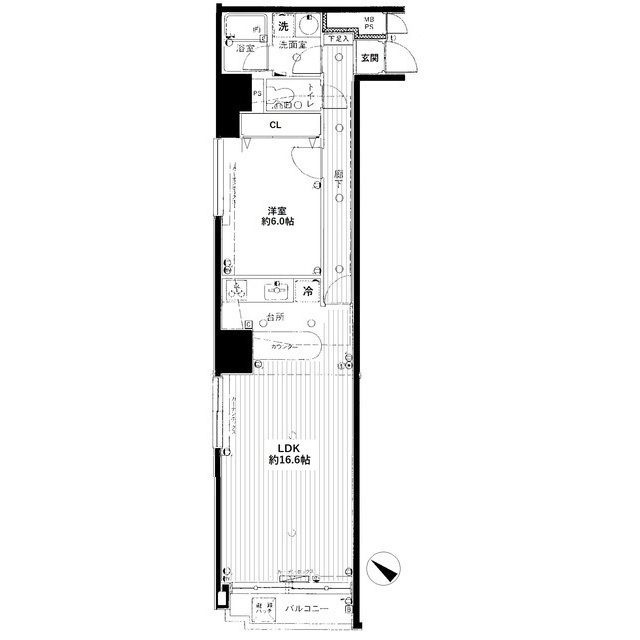
- 間取り / 詳細
- 1LDK
洋室 6.0帖/LDK 16.6帖 - 向き
- 南西
- 専有面積
- 54.69㎡
- バルコニー
(テラス)面積 - 2.87㎡
- 所在階 / 階建て
- 2階 / 13階建 地下1階
- 建物構造
- 鉄骨鉄筋コンクリート
- 築年月
- 1995年3月(築30年)
- 種別
- 賃貸マンション
- 保険会社 / 料金
- 有 住宅総合保険 20,000円 / 2年
- 保証会社 / 料金
- 必加入 / その他
指定保証会社加入必須
指定保証会社加入必須 - 現況
- 空家
- 入居可能時期
- 相談
- その他条件
- 安心サポート:1万6,500円 鍵交換代:2万2,000円
- 設備条件
-
- 陽当り良好 / 高齢者相談 / 分譲タイプ / 室内洗濯機置場 / フローリング / ベランダ / バルコニー / 都市ガス / 公営水道 / 公共下水 / エレベーター / 電気有 / 照明器具付き / 外観タイル張り / ガスコンロ / コンロ2口以上 / システムキッチン / コンロ3口 / カウンターキッチン / バス・トイレ別 / 温水洗浄便座 / 洗髪洗面化粧台 / シャワー / 独立洗面台 / エアコン / シューズボックス / CS / BS / CATV / 光ファイバー / オートロック / TVモニタ付インターホン / 宅配ボックス / 24時間緊急通報システム / ディンプルキー / 防犯カメラ / 角部屋
- 契約期間
- 2年
- 賃貸区分
- 一般
- 更新料
- 1.5ヶ月(新賃料)
- 更新事務手数料
- -
- 総戸数
- -
- 特優賃
- -
- 取引態様
- 仲介
- 物件番号
- 97608897
- 管理コード
- -
- 情報更新日
- 2025年12月07日
- 次回更新予定日
- 2025年12月14日
- 取扱会社
-
- アップシードレジデンシャル水道橋店
- 東京都文京区本郷1丁目20-4 池田ビル2階(白山通り沿い)
- TEL:03-3868-2833
- 東京都知事 (3) 第96575号
賃貸住宅管理業者(国土交通省(2)第3779号) - 公益社団法人 全日本不動産協会
- 備考
- 駒込エリアは、8万7千平方メートルの日本庭園に四季折々の花木が咲き誇る六義園があり、その周辺には敷地の広いお屋敷が並ぶ閑静な住宅街です。学校も多くファミリー・単身者含めとても暮らしやすい住環境ですよ。☆アップシードレジデンシャル水道橋店では、あなたの「住まい探し」を応援致します。文京区の物件はもちろん、他のエリアの物件につきましても、経験豊富な営業マンがあなたの新生活を精一杯サポート致します!当社ではVISA/MASTERのクレジットカード決済も可能です。
-
銀行
三井住友銀行 白山支店
120m(2分)
-
郵便局
文京向丘二郵便局
189m(3分)
-
ファーストフード
松屋 白山店
238m(3分)
-
スーパー
コープ 白山店
261m(4分)
-
ファーストフード
てんや白山店
265m(4分)
-
弁当
キッチンオリジン 本駒込店
278m(4分)
-
コンビニエンスストア
ファミリーマート文京向丘一丁目店
291m(4分)
-
喫茶店・カフェ
フレッシュネスバーガー白山駅前店
303m(4分)
-
居酒屋
鳥貴族 白山店
309m(4分)
-
郵便局
文京白山上郵便局
324m(5分)
-
コンビニエンスストア
ファミリーマート本駒込一丁目店
405m(6分)
-
コンビニエンスストア
ファミリーマート文京白山駅前店
467m(6分)
-
郵便局
文京向丘郵便局
579m(8分)
-
スーパー
大野八百屋
605m(8分)
-
酒屋
なんでも酒やカクヤス白山店
608m(8分)
-
銀行
みずほ銀行 根津支店
857m(11分)
-
銀行
三菱UFJ銀行 千駄木支店
871m(11分)
-
喫茶店・カフェ
サンマルクカフェ 千駄木店
937m(12分)
-
総合病院
都立駒込病院
1136m(15分)
-
ファミリーレストラン
ジョナサン 小石川柳町店
1261m(16分)
物件の特徴
セールスポイント
三井住友銀行 白山支店まで120mです。セキュリティ面は、TVインターホン・オートロックなどを設置しているので安全面でも優れております。駐輪場付きの物件です。文京区で快適な新生活を始めるならアップシードレジデンシャル水道橋店から素敵な住まいを見つけましょう。お問い合わせは03-3868-2833またはbunkyo@upseed.co.jpまでお気軽にどうぞ。
ポイント
分譲タイプ 南西向き システムキッチン 宅配ボックス 室内洗濯機置き場 バストイレ別 オートロック 宅配BOX 角部屋
担当者のコメント
基本情報
設備条件
その他
周辺施設
近隣の物件
ロイヤルグリーン本郷
19.8万円
10,000円
1LDK(54.69㎡)






荒木 慧大